

以上是改造前的现场实景
香港王評設計東莞公司的设计团队经过与甲方沟通,
将整个入户大堂进行了重新的定位、分析与设计。

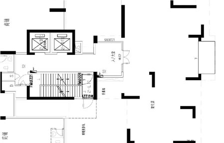
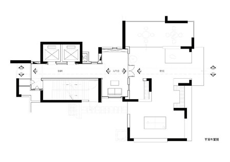
原始平面图

大堂虽然面积不大,但是空间高度高达6米......

我们针对该空间的特性,设计了一个虚拟二层走廊来解决走廊空间过高的问题,
也增强了大堂立面的层次感。材质上运用白色人造石,灰色抛光砖,黑色不锈钢来营造现代简洁的氛围。


当时距离开盘时间非常紧迫,大堂和标准层设计与施工大约只有18天,所以昼夜赶工......

一米深处的镜片使得二楼走廊看起来像真的!

橄榄绿色的沙发与“松湖春天”楼盘主题紧紧相扣

大堂完工后现场照片
标准层的设计也是延续大堂简洁现代的设计风格,只是增加了些许中式的意境。

后记:本次改造获得甲方和消费者一致肯定,
更为欣喜的是经过重新设计和改造后整个楼盘的大堂和标准层的公共空间造价比改造前的预算费用由一千多万降至八百万。
其实真正好的设计除了功能的完善,效果的提升,还能为你省钱!
